נדל"ן חדרה - בלעדיות - וילה חדשה למכירה בשכונת ניסן בחדרה!
פרטי המודעה

חדרה, שכונת ניסן 4.800.000 ₪ 1.521.600 $ 1.320.000 €

09/03/2026 | 379-IBL-417


בלעדיות - וילה חדשה למכירה בשכונת ניסן בחדרה!

BZH
חולמים על בית חדש, מואר, בשכונה יפה ושקטה, עם גן גדול ויחידה עצמאית?

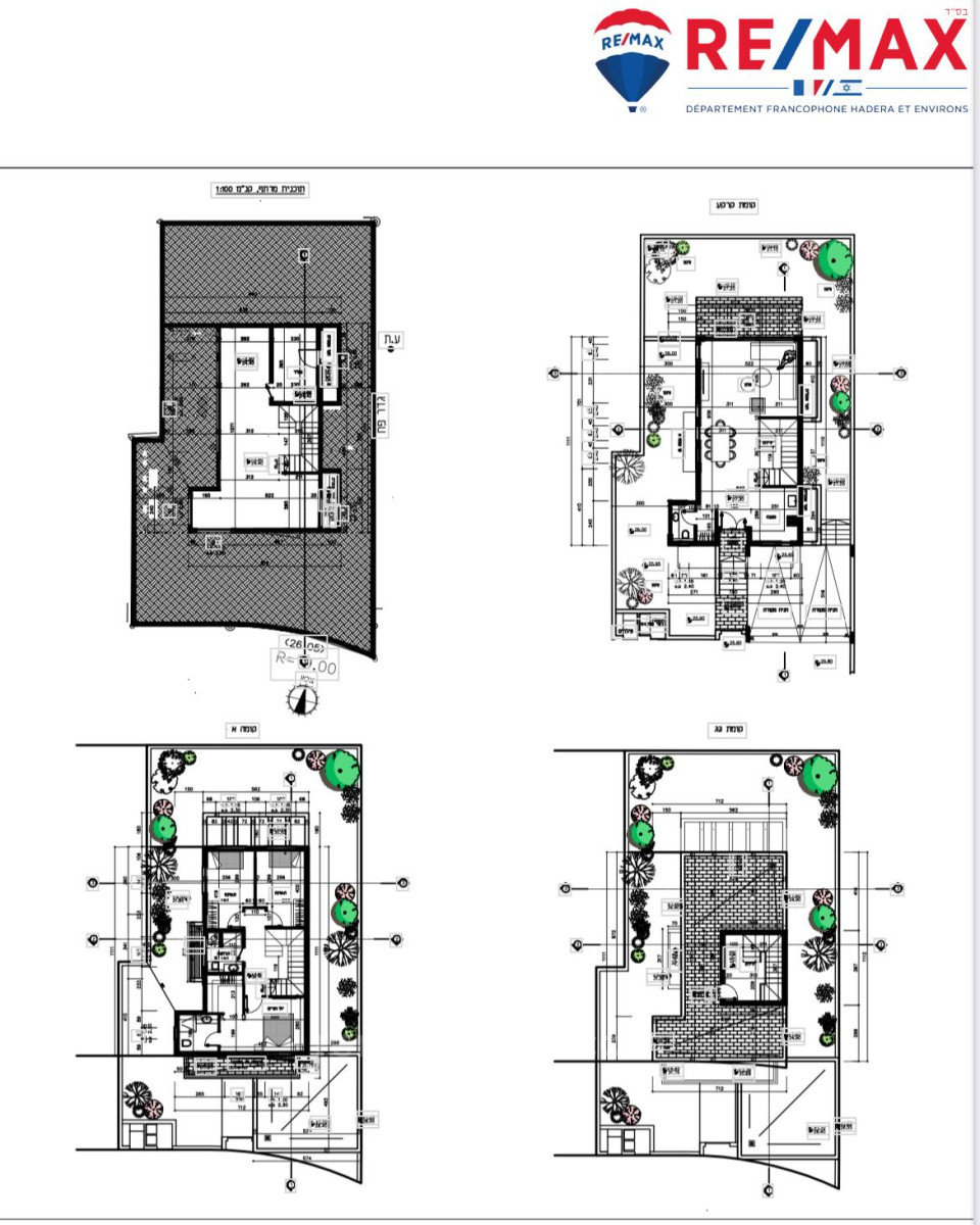
RE/MAX חדרה מציגה בבלעדיות וילת יוקרה, בסיום בנייה, הממוקמת ברחוב שקט וירוק בשכונת ניסן המבוקשת בחדרה. מסירה צפויה בעוד 3 חודשים!

- וילה חדשה בת 6 חדרים ללא קיר משותף, בנויה על 4 מפלסים
- שטח בנוי 180/270 מ״ר על מגרש פינתי
- סלון יפה עם פתחים גדולים וגישה למרפסת
- גן גדול המקיף את הבית עם דשא סינטטי
- מטבח כשר גדול עם 2 כיורים
- סוויטת הורים עם מרפסת פרטית
- 2 חדרי ילדים
- גג מרפסת מדהים בשטח 50 מ״ר עם נוף פתוח
- מרתף עצמאי בן 2 חדרים עם מטבח, ממ״ד, חדר רחצה, שירותים וכניסה נפרדת
- 4 חדרי רחצה עם שירותים בסך הכל
- חניה מקורה ל-2 כלי רכב

⭐️ אופציות נוספות: אפשרות לבריכה בגן ובנייה על הגג
⭐️ מפרט: ריצוף קרמיקה 100×100 או 60×120, 7 מזגנים אינדיבידואליים, מעקה זכוכית בסוויטת הורים, 3 לוחות חשמל, ועוד הרבה יותר!

מיקום יוצא דופן - אחד היפים בחדרה, בשכונה שקטה, עם גישה נוחה לצירים הראשיים.

צרו קשר איתנו, RE/MAX Professionals חדרה, רחל בן גיגי.
רישיון מקצועי 313736.


  • עם נוף פתוח
  • מרפסת
  • גינה
  • סוכה